Портфолио
О платформе
Портфолио
О платформе
ZA | PLATFORM
Локация библиотеки | Library location
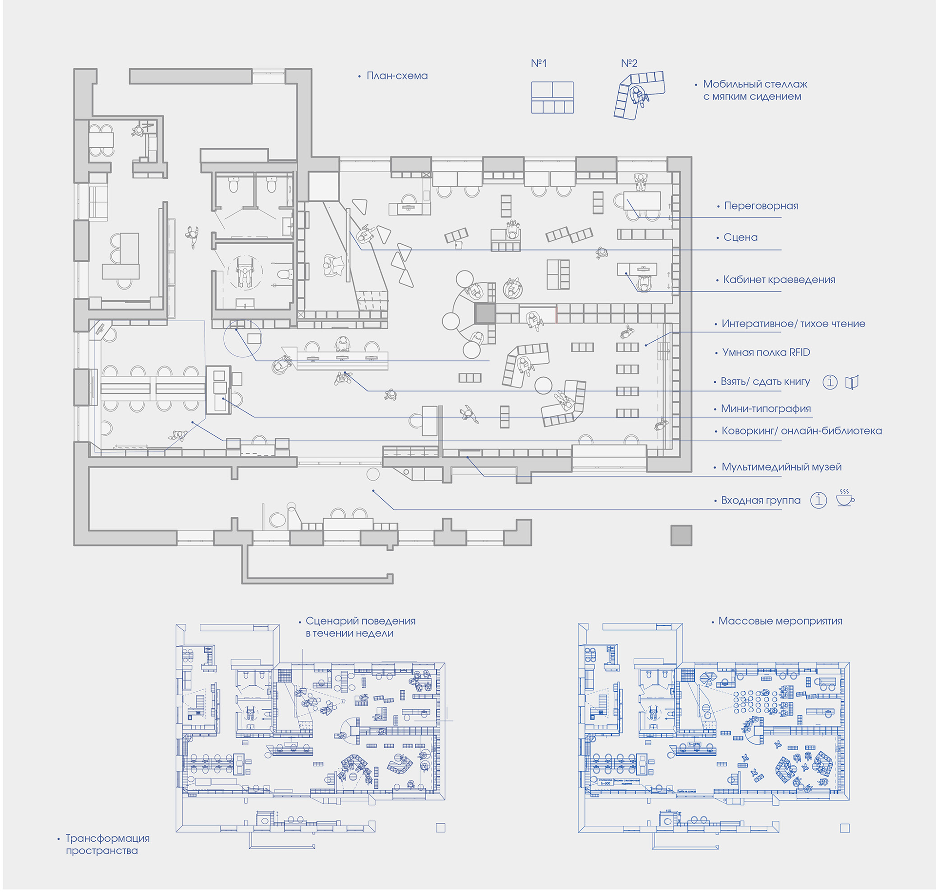
Новый сценарий библиотеки | New library script |
все фотоматериалы предоставила библиотека им. А.И. Харизовой
You may also like
Библиотека | На полярном круге
2022
Интеллектуальный центр | Надым
2025
Дом детского творчества
2023
Частная клиника
2022
Кофейня | Винил
2022
Мобильный музей
2023
Музей диорама
2022
Культурный центр
2023
Реабелитационный центр
2023
Литературный музей | Анализ экпозиции
2024
↑
Back to Top