Портфолио
О платформе
Портфолио
О платформе
ZA | PLATFORM
project:
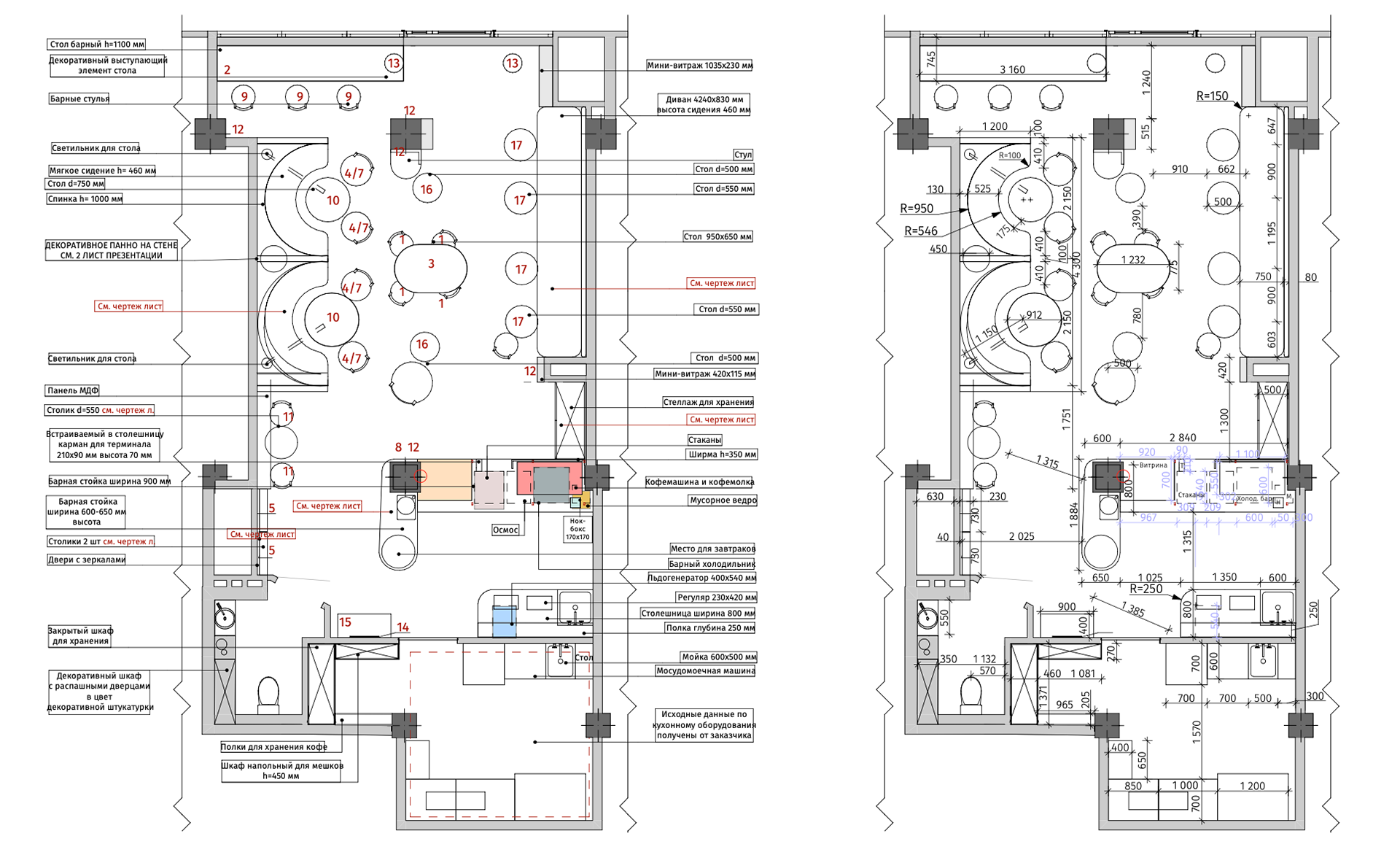
Cafe
Vinyl |
Кофейня
Винил | Russia |
area
78 m2 |
realization
2021
_
You may also like
coffe shop_Vynil 3.0_
2023
Центр социального обслуживания населения
2023
child arts centres| Детский дом творчества | ЯНАО
2023
Интеллектуальный центр
2025
Library_/ Библиотека_ ЯНАО_Nadym
2020
Мобильный музей | the museum bus
2023
Белоярская библиотека
2025
Library / Библиотека | ЯНАО г.Губкинский
2022
городская библиотека | Строитель
2025
Культурный центр | Cultural Center | ЯНАО
2023
↑
Back to Top